地址:山東省滕州市高鐵新區德藝巷789號
電話:18963222388(微信同號)
作者:山東沃達重工 發表時間:2025-09-26
錨桿托盤生產線是專門用于生產制造礦用錨桿(錨索)托盤的一種自動化流水線。根據錨桿托盤的規格尺寸不同,選用不同的錨桿托盤生產線。其中,500噸錨桿托盤生產線(500噸四柱液壓機)采購率較高,用于沖壓300x300x14mm以內的錨桿托盤,整套生產線設備包括500噸錨桿托盤液壓機、錨桿托盤模具、送料機、機械手及他輔助設備組成。

500噸錨桿托盤生產線是集自動推料、拉伸、沖裁、出料為一體的沖壓加工設備,可實現從鋼板到成品的一次成型工藝,提高生產效率的同時,節省人力成本;可完全實現自動化。自動化程度高,噪音低,效率高,可一分鐘出4-6塊錨桿托盤。

500噸錨桿托盤生產線采用 PLC 可編程控制器及觸摸屏控制,伺服驅動導向送料、送料長短可調,減少人員操作。PLC 自動化控制,人機交互界面,可手動和自動控制生產線各部件的動作協調。
1、主機(500噸四柱液壓機): PLC觸摸屏數控系統控制生產,伺服驅動導向送料、送料長短可調,減少人員操作。
2、控制系統:自動化經送料沖裁生產設備PLC自動化控制生產速度可調,人機交互界面可手動和自動控制生產線各部件的動作協調。
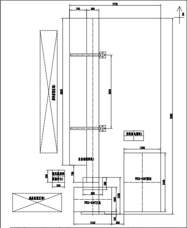
500噸錨桿托盤生產線安裝布局圖:

錨桿托盤生產線的工作過程:
1、送料:
由自動送料機將鋼板抓取傳送到500噸錨桿托盤液壓機工作臺面的模具上,等待拉伸沖孔;
2、拉伸沖孔沖裁:
利用模具將鋼板一次拉伸沖裁沖剪工藝,得到錨桿托盤成品;500噸錨桿托盤液壓機的具體的工作流程:滑塊快速下行—慢速加壓—保壓延時—滑塊快速返回—原位停止等,完成錨桿托盤的一個沖壓生產工藝流程。
3、出料:
成品錨桿托盤由輔助設備推料機推送到傳送帶;
4、如果需要,也可配機械手,可直接將壓制好的錨桿托盤進行碼垛。
沃達重工四柱液壓機以其結構穩定、精度高、高效多功能、安全可靠且維護方便等特點,更適合工業大批量生產。技術創新和高效生產能夠滿足不同行業的生產需求,提高生產效率和產品質量,同時還能夠節約能源和保護環境。可根據客戶的要求、產品的要求而定,請致電18963222388。